Rénovation totale d'un
haussmannien familial
de 140m2 à Paris 9ème
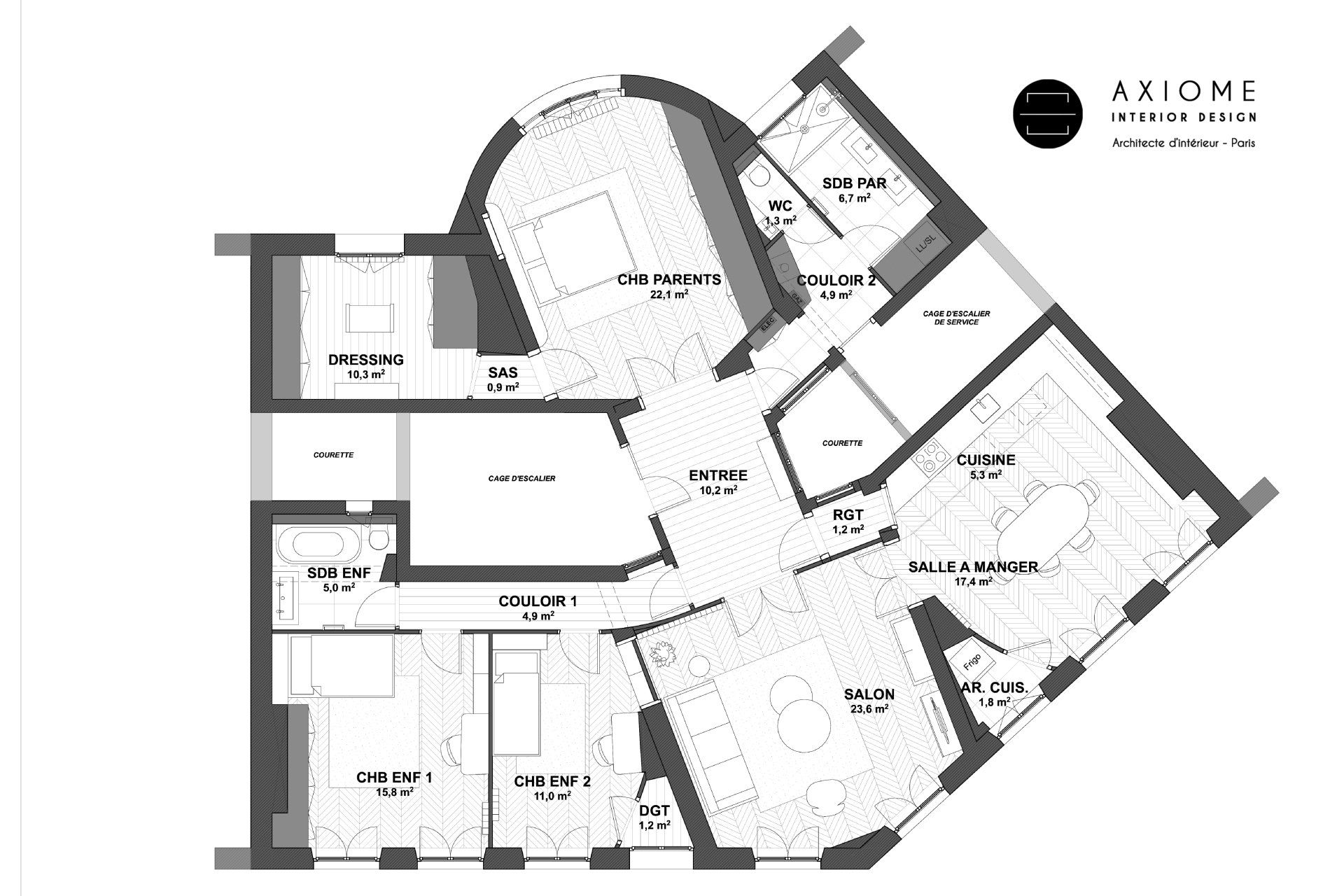
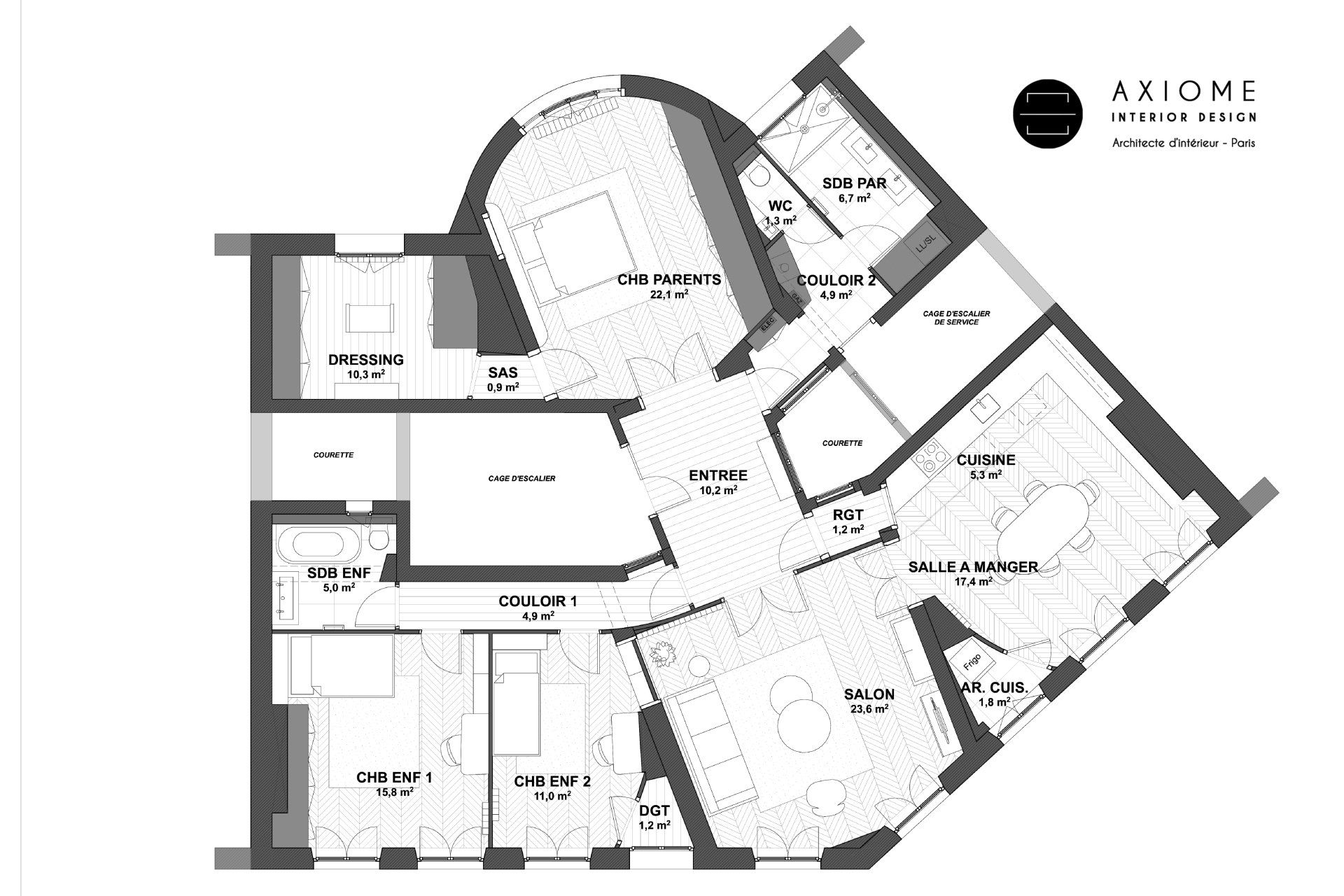
Créer une cuisine dans l'ancien bureau et l'intégrer à la nouvelle salle à manger était le principal défi. Dans cette pièce majestueuse la cuisine n'a été conçue qu'avec des meubles bas afin de mettre en valeur la pièce et laisser circuler la lumière. Des matériaux nobles tels que le marbre et le noyer ont été choisis et s'associent aux couleurs crèmes intemporelles. Un lustre majestueux trône au dessus de la table.
L'ancienne salle manger est devenue le salon et disposait déjà de touts les atouts haussmanniens: moulures, parquet en point de Hongrie, cheminée, hauteur sous plafond, trumeaux, portes miroirs. Il n'y avait rien de plus à ajouter si ce n'est de rénover parfaitement du sol au plafond en trouvant le bon mobilier ainsi que les peintures adaptées pour le mettre en valeur.
L'ancien salon a été transformé en chambre master et l'ancienne cuisine en salle de bain créant ainsi une véritable suite parentale avec une immense chambre lumineuse. Les enfants ont eux aussi leur espace dédié séparé et la famille se retrouve au centre de l'appartement.
Côté enfants, des menuiseries sur mesure ont été dessinées avec notamment un dressing et sa niche de lecture que nous avions déjà préalablement modélisé en 3D. Dans la salle de bain des filles, c'est elles qui ont choisi la couleur du carrelage !

Résidentiel 2022 / Haussmannien 140m2 / Mission: conception architecturale seule / Durée des travaux: 6 mois